市面上目前大量的用到了籃式過濾器,因其處理水質較好被人們所需求。隨著市場的成熟化,這一產品的價格也逐漸透明。當然也存在一些不良廠家通過降低設備質量來增加利潤。那么接下來籃式過濾器廠家小編就給大家講述下其型號及技術參數的選擇:
籃式過濾器主要是由接管、筒體、濾籃、法蘭、法蘭蓋及緊固件等組成。安裝在管道上能除去流體中的較大固體雜質,使機器設備(包括壓縮機、泵等)、儀表能正常工作和運轉,達到穩定工藝過程,保障安全生產的作用
當液體通過筒體進入濾籃后,固體雜質顆粒被阻擋在濾籃內,而潔凈的流體通過濾籃、由過濾器出口排出。當需要清洗時,旋開主管底部螺塞,排凈流體,拆卸法蘭蓋,清洗后重新裝入即可。因此,使用維護極為方便。
下面就是籃式過濾器的幾種型號:
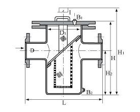
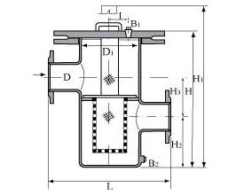
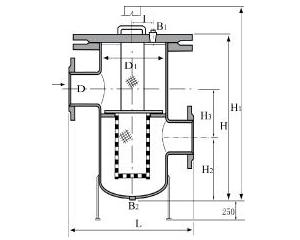
| 直通平底籃式過濾器(SRBI型) | 直通弧底籃式過濾器(SRBII型) | 籃式過濾器 |
![]() |
![]() |
![]() |
| 高低接管籃式過濾器(SRBIII型) | 高低接管弧底籃式過濾器(SRBIV型) | 夾套過濾器(SRBIJ型) |
![]() |
![]() |
![]() |
| 技術參數 | 規格尺寸mm | ||
| 產品型號 | SRBI SRBII SRBIII SRBIV | 口徑 | LD1 H H1 |
| 殼體材質 | WCB H2 304 316L 襯氟 | DN25 | 18076 260 125 |
| 過濾芯件 | 304 316L PTFE | DN32 | 20076 270 160 |
| 螺栓螺母 | 20# 304 316L | DN40 | 260108 300 170 |
| 過濾精度 | 10~300目 | DN50 | 260108 300 170 |
| 密封墊片 | NER PTFE | DN80 | 340159 400 250 |
| 環境溫度 | +450OC~-30OC | DN100 | 400219 470 300 |
| 公稱壓力 | 0~10.0MPa 150~600LB | DN150 | 500273 630 420 |
| 連接形式 | 法蘭 螺紋 對焊 | DN200 | 560325 780 530 |
| 法蘭標準 | GB HG SH JB ANSI JIS DIN | DN250 | 660420 930 640 |
| 制造標準 | HGJ532-91 GB150-98 | DN300 | 750450 1200 840 |
這些內容就是籃式過濾器廠家小編給大家概述的保籃式過濾器的產品質量選擇方式,希望用戶在選擇廠家時,能根據自己的需要選擇合適的材質,在購買價格上能有一些參考。若需要其他方面了解,可隨時撥打我們的聯系電話400-8890726,來咨詢,我們的技術團隊會針對您的情況向您設計有效的方案。





